2 photos

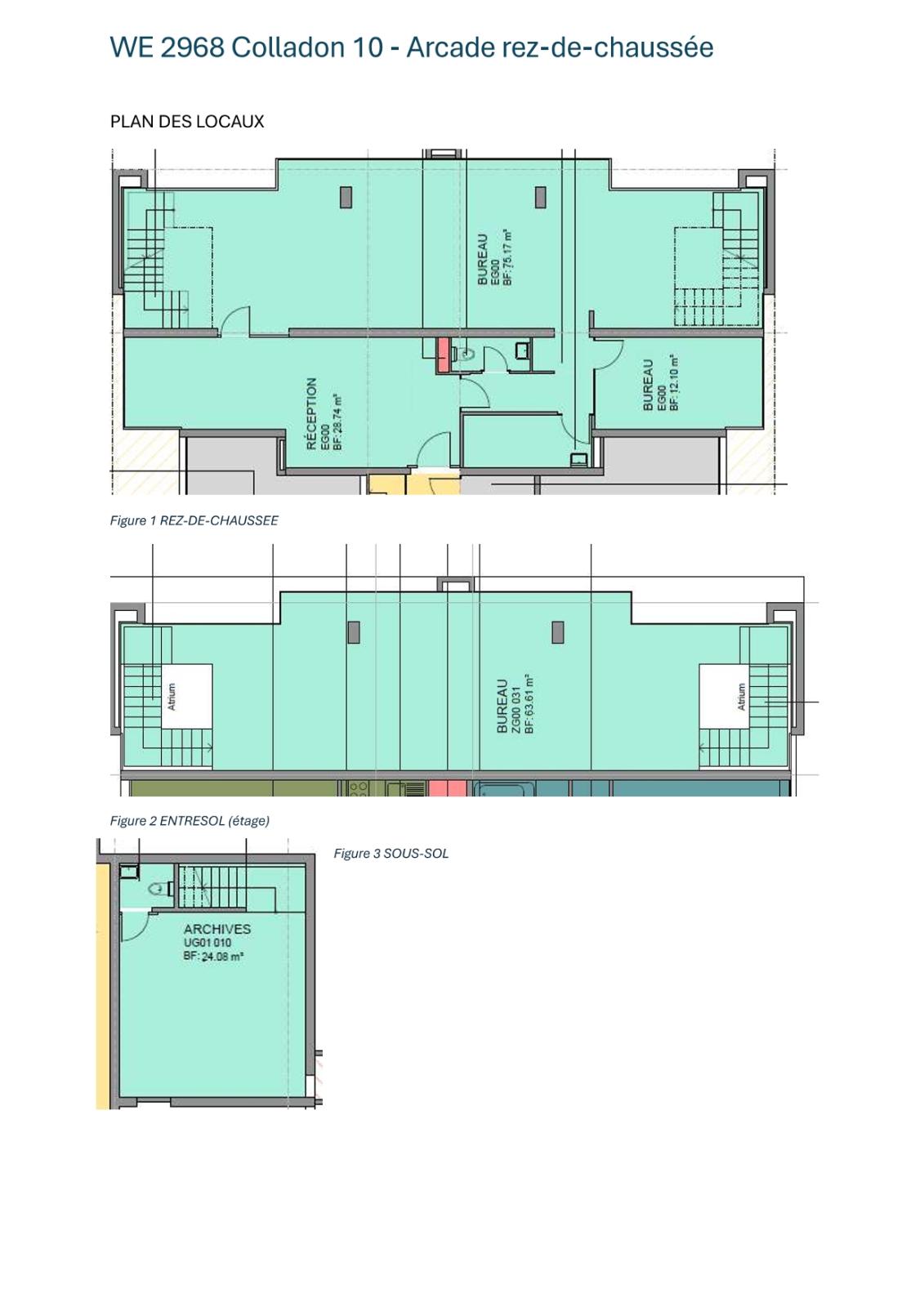
Type : Arcade

Loyer net : CHF 4'500.-

Charges : CHF 480.-

Pièce(s) : 10

Surface habitable : 250 m²

Disponibilité : Disponibilité sur demande


Immeuble contemporain situé à proximité des commerces et des transport publics ainsi que des écoles

Smart | Caution
Dès CHF 25.-Calculez votre prime


Emplacement du bien - Chemin Colladon 10, 1209 - Genève, Suisse


Emplacement du bien - Chemin Colladon 10, 1209 - Genève, Suisse

Contactez-nous pour plus d'informations

* Champs obligatoire

Les biens aux alentours